Thum

Thum 02
Thum 03

Doppelhaus am See

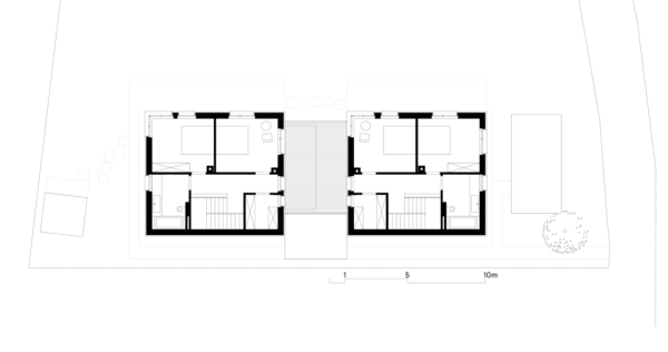
In Thumersbach bei Zell am See planten wir ein Doppelhaus auf einer schmalen Parzelle. Der einfach gegliederte Baukörper mit den zwei flach geneigten Satteldächern und der Lärchenholzfassade fügt sich in die Landschaft ein. Materiell ist das Gebäude in Massivbauweise mit Ziegeln, Holz-Aluminiumfenstern, viel Holz und Niedrigenergiestandard stilistisch zeitlos und langlebig.

Alle Wohnräume sind nach Westen zu Seeblick und Abendsonne orientiert, große, unterschiedlich formatierte Fenster zelebrieren die Aussicht und holen Licht ins Innere. Die Grundrisse der beiden Häuser sind demokratisch an der Mittelmauer gespiegelt. Vor der Eingangsnische steht ein alter Apfelbaum, dessen Schatten die vertikalen Lärchenholzlatten der Fassade belebt.

Neubau Doppelhaus
Thumersbach, Zell am See
Auftraggeber privat
2018 fertiggestellt
Nutzfläche Wohnen: ca. 165 m2 pro Haus
Fotos: Manfred Seidl

Lageplan

Thum plan 01

Grundriss 1. OG

Thum plan 02
Thum 05
Thum 07

Schnitt

Thum plan 03
Thum 01

Weitere Projekte

Glinz 01

Glinz

Erweiterung Kindergarten, Glinzendorf/NÖ

Araburg 01

Araburg

Zubau Veranstaltungshalle, Kaumberg/NÖ

Alle9ne 01

Alle 9e

Wohnanlage, Kottingbrunn/NÖ