Hoch

Hoch 01

Die drei Wohnbauten im Norden von München bilden ein homogenes Ensemble durch ihre einheitlichen Fassaden aus vertikalen Holzlatten und Loggien, die das vertikale Gestaltungsprinzip aufgreifen. Mit der hybriden Holzmodulbauweise übertreffen wir die Umweltauflagen und machen kleine Extras möglich, wie in die Wandelemente integrierte Nistkästen für Fledermäuse und Vögel. Bei der Ausstattung haben wir Wert auf gemeinschaftsbildende Räume gelegt, dazu zählen ein Nachbarschaftstreff, eine gemeinsame Terrasse mit Hochbeeten, oder ein Kinderspielplatz.

Wohnbau
Hochmuttingerstraße, München, Feldmoching
Auftraggeber: Münchner Wohnen
Fertigstellung: 2024
101 Wohneinheiten
Nutzfläche: 5.688 m2
Projektpartner: BKS & Partner Architekten, München
Landschaftsplaner: Irl Rebmann Landschaftsarchitekten Stadtplaner
Fotos: Peter Szekacs, Oliver Heissner

Lageplan

Lageplan 01
SYNN M Hoch Foto c O Heissner 4728
Hoch 03

Haus 1 Ansicht

H1 ansicht 02

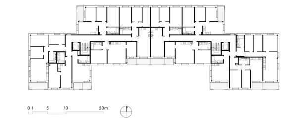
Haus 1 Grundriss RG

H1 RG 02
SYNN M Hoch Foto c O Heissner 4846

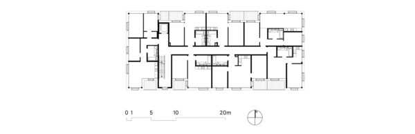
Haus 2 Grundriss RG

H2 RG 02

Haus 2 Ansicht

H2 ansicht 02
Hoch 15
Hoch 18

Haus 3 Ansicht

H3 ansicht 02

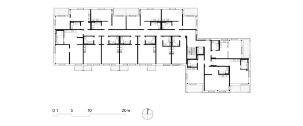
Haus 3 Grundriss RG

H3 RG 02
Hoch 10
SYNN M Hoch Foto c O Heissner 4781
Hoch 07
SYNN M Hoch Foto c O Heissner 4752
SYNN M Hoch Foto c O Heissner 4839

Weitere Projekte

Campobreitenlee 06

Campo Breitenlee

Wohnbau, Wien

Querbeet 01

Querbeet

Wohnbau und Kindergarten, Wien

Thum 01a

Thum

Privates Wohnhaus, Zell am See