Housen 01

Haus N

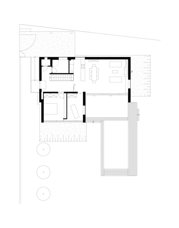
Unser Entwurf für ein Sommerhaus in Korneuburg legt den Fokus auf ein unmittelbares Erlebnis von Natur. Der Baukörper besteht aus zwei Quadern, deren gartenseitige Wände vollständig verglast sind, um einen unverstellten Blick auf den Garten zu bieten.

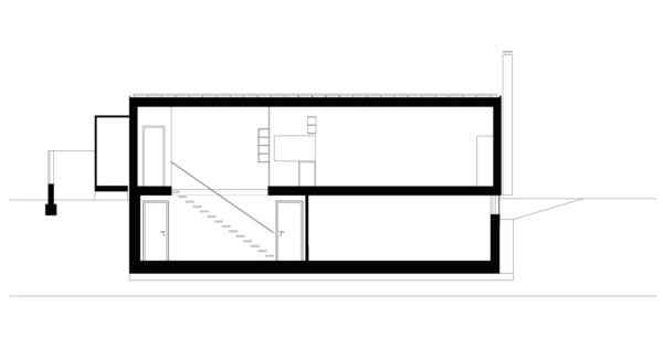
Die beiden Quader werden so ineinander geschoben, dass das vorgezogene Dach des Größeren sich schützend über die kleinere Schlaf-Box legt. Das bietet sowohl Sonnenschutz für den Wohnraum als auch Reflexionsfläche für das Spiel des Wassers im Pool. In dem reduzierten Ensemble erscheint der angrenzende Pool wie ein dritter Baukörper, der durch sein strahlendes Blau einen ästhetischen Kontrapunkt zu Innenraum und Fassade des Hauses, aber auch zum umliegenden Grün setzt.

Einfamilienhaus
Korneuburg, NÖ
Auftraggeber privat
2003 fertiggestellt
Nutzfläche Wohnen: ca. 186 m2
Holzbau
Fotos: Alexander Haiden

Housen 02

Grundriss EG

Housen plan01a

Schnitt

Housen plan 02a

Schnitt

Housen plan 03a

Die Haus öffnet sich zum Garten hin, um den Sommer zu feiern.

Housen 03
Housen 06
Housen 05
Housen 07

Weitere Projekte

Thum 01a

Thum

Privates Wohnhaus, Zell am See

Elise 01

Elise

Privates Wohnhaus, Wien

Lux 01

Lux

Umbau und Erweiterung eines Firmensitzes, Hainfeld/NÖ