Ebi 7

Ebi7 01

Das EBI 7 in der Wiener Mariahilfer Straße ist im Gegensatz zum ersten EBI im 21.Bezirk, dass sich vom Ambiente her eher am »klassischen« China-Restaurant orientiert, sehr reduziert gestaltet. Die Farbgestaltung beschränkt sich auf schwarz für Boden, Decke, Sessel und die stoffbespannten Wandverkleidungen und Eichenholz für die Tische und Bar-Elemente. Auch die Beleuchtungskörper sind außen schwarz, lediglich die Innenseiten sind goldfarben und tauchen das Lokal in ein warmes Licht.

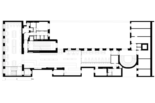
Eine besondere Herausforderung war die Lage des Lokals im Obergeschoss mit einem ca. 2,50 Meter breiten Raum im Erdgeschoß als Zugang von der Mariahilfer Straße. Um die Neugier der Passanten zu wecken, ist der Eingangsbereich mit einer Glasfassade geöffnet, im Inneren ist ein mit grünem Stoff bespanntes Element zu sehen, das den Blick nach oben Richtung Gastraum leitet. Um dieses Element windet sich eine gefaltete schwarze Sichtbetonstiege, die den Besucher nach oben direkt in den ersten Restaurant-Bereich führt.

Dieser erstreckt sich über die gesamte Hausbreite an der Mariahilfer Straße. Entlang der 20 Meter langen offenen Küche gelangt man zum zweiten Gastraum. Die Rückwand dieses Raumes besteht aus einem ebenfalls mit stoffbespannten Kassetten verkleideten Regal. Stellenweise ist dieses mit Profilit Glaselementen geöffnet.

Umbau Restaurant
Wien
Auftraggeber EBIS Gastronomie
2016 fertiggestellt
Nutzfläche: 260 m2, ca. 130 Sitzplätze
Fotos: Hertha Hurnaus

Ebi7 06
Ebi7 07

Um die Neugier der Passanten zu wecken, ist der Eingangsbereich mit einer Glasfassade geöffnet. Im Inneren leitet ein mit grünem Stoff bespanntes Element den Blick nach oben Richtung Gastraum.

Ebi7 05
Ebi7 04
Ebi7 02

Grundriss

Ebi7 map GR
Ebi7 03

Die gesamte Rückwand des zweiten Gastraums besteht aus einem Regal, dessen rhythmisch eingefügte Glasmodule den Raum öffnen.

Ebi7 09a
Ebi7 08

Weitere Projekte

Glinz 01

Glinz

Erweiterung Kindergarten, Glinzendorf/NÖ

Araburg 01

Araburg

Zubau Veranstaltungshalle, Kaumberg/NÖ

Lux 01

Lux

Umbau und Erweiterung eines Firmensitzes, Hainfeld/NÖ